Serwis brzozowiak.pl wykorzystuje informacje przechowywane w plikach cookies. Korzystanie z serwisu bez zmiany ustawień dotyczących cookies oznacza, że wyrażają Państwo zgodę na ich zapisanie w pamięci urządzenia. Zmiany zasad korzystania z plików cookies można przeprowadzić w ustawieniach przeglądarki w dowolnej chwili. [więcej informacji o cookies]
ogłoszenia ) dom i ogród ) usługi ) Parterowe domy murowane – stan surowy otwarty
dom i ogród : usługi
2026.01.22

Parterowe domy murowane – stan surowy otwarty

Podkarpacie Sanok i okolice

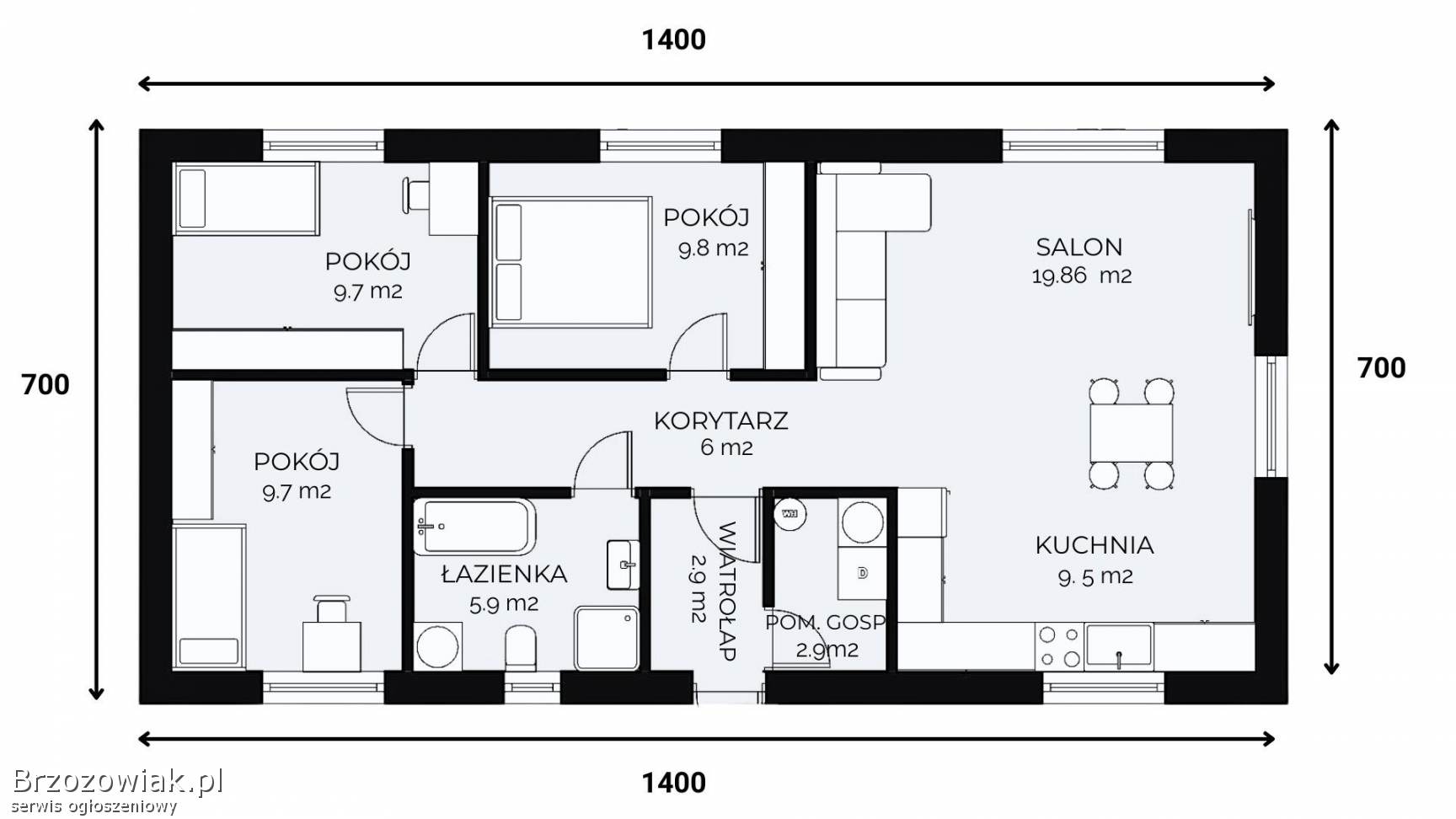
Realizujemy budowę parterowych domów murowanych w stanie surowym otwartym (SSO).
Budujemy samą bryłę domu – bez ścian działowych, dzięki czemu układ wnętrza ustalasz pod siebie, a nie pod gotowy projekt katalogowy.

Dostępne warianty – powierzchnia zabudowy:
- 69 m² – 186 000 zł brutto
- 96 m² – 232 000 zł brutto
- 98 m² – 237 000 zł brutto
- 112 m² – 261 000 zł brutto

Ceny dotyczą stanu surowego otwartego – samej bryły domu.

Dlaczego bez ścian działowych
- każdy dom ma inne potrzeby
- ściany działowe wpływają na koszt i metraż
- nie sprzedajemy gotowego schematu
- inwestor decyduje, ile będzie sypialni i jak wygląda wnętrze

Co oferujemy:
- parterowy dom murowany
- prosta, ekonomiczna bryła
- jasna cena za konkretny etap budowy
- elastyczność w dalszym wykończeniu
- spokojny, uporządkowany proces realizacji

Obszar realizacji:
Podkarpacie: Sanok, Lesko, Krosno, Ustrzyki Górne, Rzeszów i okolice

Po kontakcie:
- przekazujemy szczegóły zakresu prac
- materiały informacyjne
- odpowiadamy na pytania dotyczące budowy

📩 Kontakt przez formularz lub wiadomość.

x Ceny orientacyjne. Zakres prac: stan surowy otwarty.

Sanok
gmina Sanok, powiat sanocki, woj. podkarpackie
(pokaż informacje kontaktowe...)
Inne ogłoszenia użytkownika
dom i ogród : usługi

Murowany dom 35 m² – całoroczny

Podkarpacie Sanok i okolice Realizujemy budowę murowanego domu całorocznego o powierzchni zabudowy 35 m². To nie jest domek letniskowy ani ROD, tylko pełnop

135 000 PLN
Sanok
LO-STARK - CZĘŚCI SAMOCHODOWELO-STARK - ZŁOMOWANIE POJAZDÓW CZĘŚCI SAMOCHODOWE